Баня 7x8

от 1 226 000р.
  • Общая площадь 51.86 м2
  • Площадь застройки 56 м2
  • Размеры 7х8 м
  • Технология Каркасная Каркасно-щитовая Из бруса
  • Срок строительства от 7 дней
  • Маткапитал На зимние комплектации и ПМЖ
  • Кредит от 24,9%

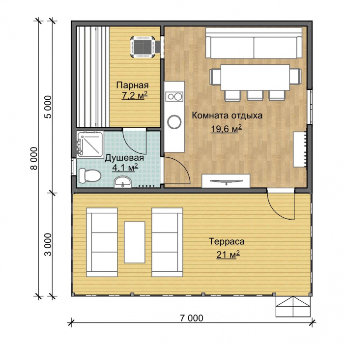
Сначала баня, а после шашлыки... Звучит здорово, не так ли? С баней 7х8 такие мероприятия будут происходить на вашем участке очень часто, за счет интересной планировки строения!

Обратите внимание на просторные комнаты: душевая (4,1 м2), комната отдыха (19,6 м2) и парная (7,2 м2). Здесь поместится много людей, что особенно актуально для большой семьи или для тех, кто любит приглашать гостей. Ну, и вишенка на торте — большая терраса площадью 21 м2! Здесь поместятся и гриль, и скамейка качели, и длинный стол. Домашние посиделки выходят на новый уровень!

Срок строительства — от 7 дней. 

Планировки бани *
Планировка 1
* Размеры и площади указаны без учета наружной и внутренней отделки и в разных комплектациях могут меняться (из-за толщины утеплителя, стен и перегородок). Подробности уточняйте у менеджера.
Комплектации
Эконом Каркасно-щитовая
1 226 000 р.
цена декабря
1 495 000 р.
цена в 2026 г.
Заказать баню Смотреть комплектацию
Фундамент дома

Опорные столбы из бетонных блоков высотой 200 мм, на бетонной армированной плитке 400х400х50 мм на песчаной подушке. Гидроизоляция фундамента рубероид в два слоя. Замкнутая нижняя обвязка толщиной 95 мм, ПМК.

Огнебиозащита, антисептирование

нет

Конструкция пола 1-го этажа

Толщина конструкции 118 мм, гидро-ветроизоляционная мембрана, ПМК, гидро-ветроизоляционная мембрана, черновой пол толщиной 10 мм.

Утепление пола 1-го этажа

100 мм минеральная вата.

Настил пола 1-го этажа

Доска пола 21 мм.

Стены

Толщина конструкции 122 мм. Высота потолка 2,06 м. Обшивка внутри и с наружи 12,5 мм, ПМК, гидро-ветроизоляционная мембрана. Утепление стен до 100 мм.

Перекрытие 1-го этажа

Толщина конструкции 109 мм, ПМК, обшивка 12,5 мм. Утепление 100 мм.

Перегородки

Толщина перегородок 122 мм. Обшивка 12,5 мм, ПМК*, пароизоляционная мембрана, минеральная вата 100 мм, пароизоляционная мембрана, обшивка 12,5 мм.

Кровля

Оцинкованный профилированный лист. Крепление кровельными саморезами.

Окна

Деревянные распашные. Остекление двойное

Двери

Деревянные.

Парная

Стены и потолок обшиваются осиновой вагонкой с прокладкой ППЭ фольгированного; полок в парной из осины.

Оборудование

В парной установлена дровяная печь с дымоходом и баком для воды, в моечном помещении установлен поддон.

Стандарт Каркасная
1 612 000 р.
цена декабря
1 966 000 р.
цена в 2026 г.
Заказать баню Смотреть комплектацию
Фундамент дома

Опорные столбы из бетонных блоков высотой 200 мм, на бетонной армированной плитке 400х400х50 мм на песчаной подушке. Гидроизоляция фундамента рубероид в два слоя. Замкнутая нижняя обвязка толщиной 145 мм ПМК.

Огнебиозащита, антисептирование

нет

Конструкция пола 1-го этажа

Толщина конструкции 168 мм, пароизоляционная мембрана, ПМК, гидро-ветроизоляционная мембрана, черновой пол толщиной 10 мм.

Утепление пола 1-го этажа

Минеральная вата 150 мм.

Настил пола 1-го этажа

Доска пола 21 мм.

Стены

Толщина стен 170 мм. Высота потолка 2,2 м. Обшивка внутри и с наружи 12,5 мм, ПМК, минеральная вата 150 мм, гидро-ветроизоляционная мембрана.

Перекрытие 1-го этажа

Толщина конструкции 109 мм. ПМК*, минеральная вата 150 мм, пароизоляционная мембрана, обшивка 12,5 мм.

Перегородки

Толщина перегородок 122 мм. Обшивка 12,5 мм, ПМК*, пароизоляционная мембрана, минеральная вата 100 мм, пароизоляционная мембрана, обшивка 12,5 мм.

Кровля

Оцинкованный профилированный лист. Крепление кровельными саморезами.

Окна

Деревянные распашные. Остекление двойное.

Двери

Деревянные.

Парная

Стены и потолок обшиваются осиновой вагонкой с прокладкой ППЭ фольгированного, полок в парной из осины.

Оборудование

В парной установлена дровяная печь с дымоходом и баком для воды, в моечном помещении установлен поддон.

Люкс Из бруса
1 862 000 р.
цена декабря
2 271 000 р.
цена в 2026 г.
Заказать баню Смотреть комплектацию
Фундамент дома

Опорные столбы из бетонных блоков высотой 200 мм, на бетонной армированной плитке 400х400х50 мм на песчаной подушке. Гидроизоляция фундамента рубероид в два слоя. Замкнутая нижняя обвязка толщиной 145 мм ПМК.

Огнебиозащита, антисептирование

нет

Конструкция пола 1-го этажа

Толщина конструкции 168 мм, пароизоляционная мембрана, ПМК, гидро-ветроизоляционная мембрана, черновой пол толщиной 10 мм.

Утепление пола 1-го этажа

150 мм минеральная вата.

Настил пола 1-го этажа

Доска пола 21 мм.

Стены

Толщина стен 140 мм. Высота потолка (без учета усадки) 2,176 м. Брус строганный профилированный 140х140 мм (финский профиль). Прокладывается межвенцовый уплотнитель, закрепляется между собой деревянными нагелями.

Перекрытие 1-го этажа

Толщина конструкции 109 мм. ПМК*, минеральная вата 150 мм, пароизоляционная мембрана, обшивка 12,5 мм.

Перегородки

Толщина перегородок 90 мм. Брус строганный профилированный 140х90 мм (финский профиль). Прокладывается межвенцовый уплотнитель, закрепляется между собой деревянными нагелями.

Кровля

Оцинкованный профилированный лист. Крепление кровельными саморезами.

Окна

Деревянные распашные. Остекление двойное.

Двери

Деревянные.

Парная

Стены и потолок обшиваются осиновой вагонкой с прокладкой ППЭ фольгированного; полок в парной из осины.

Оборудование

В парной установлена дровяная печь с дымоходом и баком для воды, в моечном помещении установлен поддон

В любую комплектацию возможно внести изменения!

Доставка свыше 100 км от производственной базы (Московская область, г. Бронницы, с. Заворово):
Эконом Стандарт
баня с блочным фундаментом 451 руб./км
баня со свайно-винтовым фундаментом 536 руб./км
Люкс
баня с блочным фундаментом 451 руб./км
баня со свайно-винтовым фундаментом 536 руб./км
Баня со свайно-забивным (ЖБИ) фундаментом 565 руб./км
Отправить заявку на проект
Комплектация
Не важно
  • Эконом
  • Стандарт
  • Люкс
Город*
Выберите город
  • Москва и область
  • Рязань и область
  • Другой
Планировка
Выберите планировку
  • Планировка 1