Дачник 6х9 Брус

от 2 273 000р.
  • Общая площадь 80.7 м2
  • Площадь застройки 54 м2
  • Размеры 6х9 м
  • Технология Из бруса
  • Срок строительства от 7 дней
  • Маткапитал На зимние комплектации и ПМЖ
  • Кредит от 24,9%

Просторный дачный дом станет отличным пристанищем для дружной семьи. Брус, из которого возведен дом, делает его прочным и крепким. На входе есть крыльцо-терраса, защищающее от непогоды и являющееся небольшим местом для отдыха на открытом воздухе.

Планировок четыре, и они предусматривают наличие кухни, гостиной, санузла и нескольких спален. На мансардном этаже есть два просторных помещения, которые можно обустроить на свой вкус. Выбирайте наиболее подходящий план для вашего загородного участка! Рассмотрите одну из двух комплектаций — Стандарт или Люкс. Они отличаюся фундаментом, толщиной утеплителя и окнами.

Вы также можете внести в план проведение инженерных коммуникаций: подведение труб горячей и холодной воды, прокладка канализационных труб, подключение водонагревателя и проведение электроснабжения в пластиковые короба.

Срок строительства дома из бруса — от 7 дней.

Планировки дома *
Планировка 1 Планировка 2
1-й этаж Планировка 1
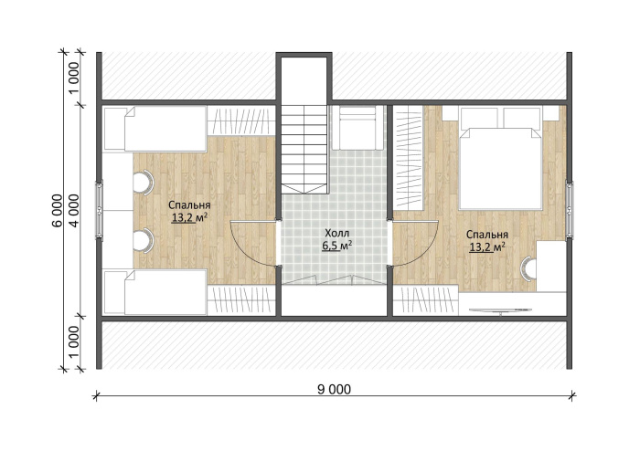
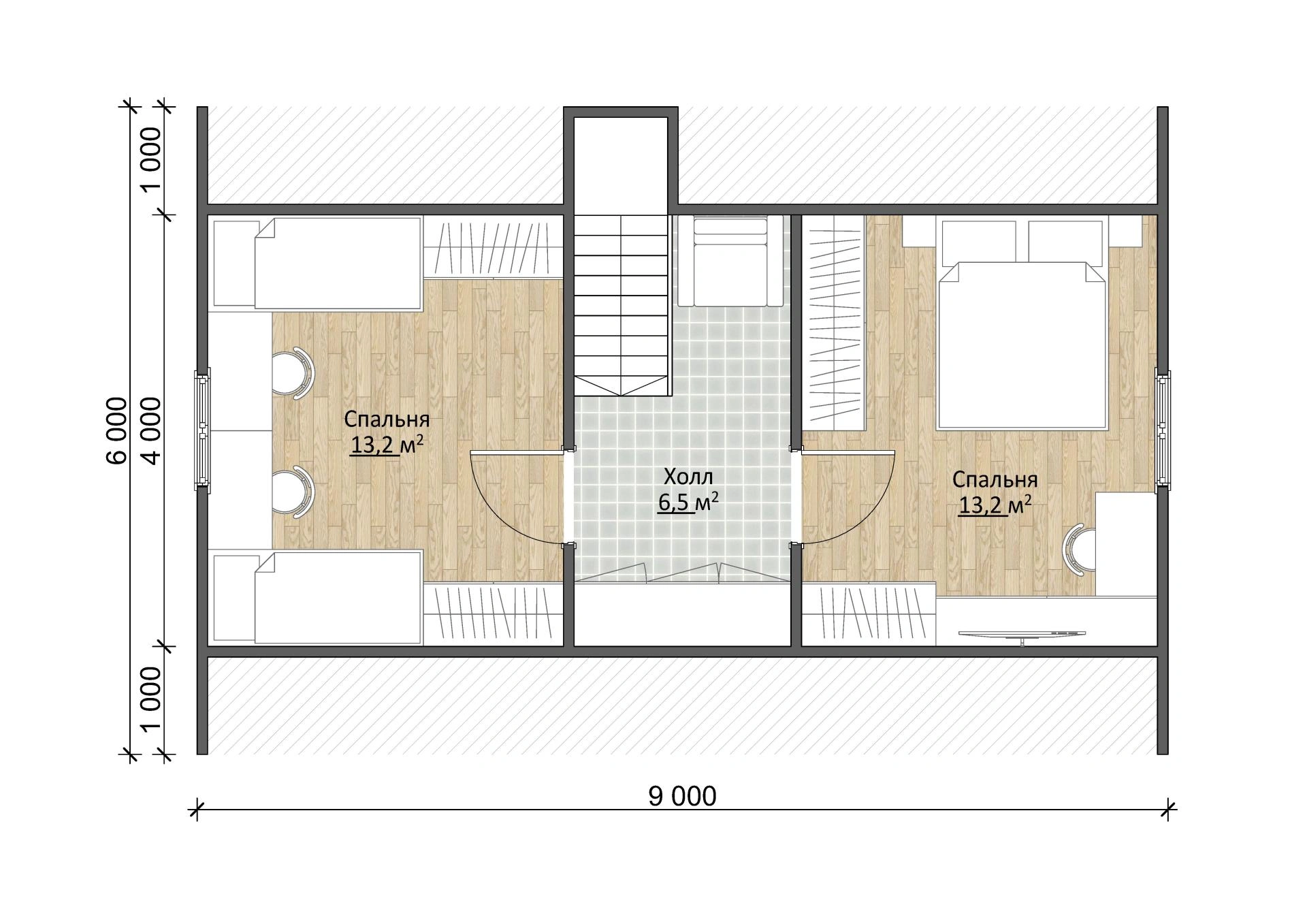
2-й этаж Планировка 1
* Размеры и площади указаны без учета наружной и внутренней отделки и в разных комплектациях могут меняться (из-за толщины утеплителя, стен и перегородок). Подробности уточняйте у менеджера.
1-й этаж Планировка 2
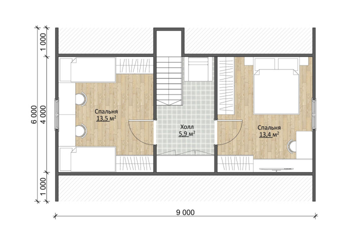
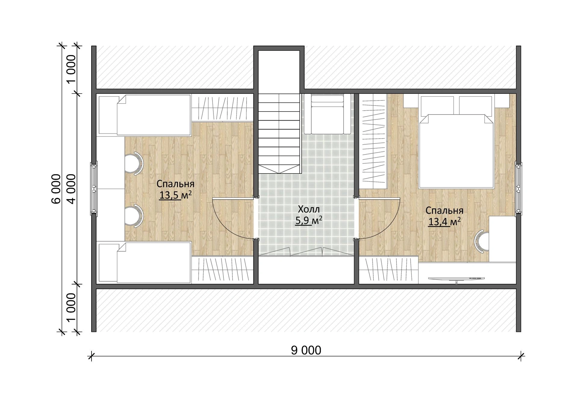
2-й этаж Планировка 2
* Размеры и площади указаны без учета наружной и внутренней отделки и в разных комплектациях могут меняться (из-за толщины утеплителя, стен и перегородок). Подробности уточняйте у менеджера.
Комплектации
Стандарт Из бруса
2 273 000 р.
цена апреля
2 358 000 р.
цена по ипотеке
2 772 000 р.
цена мая
225 398 р.

Пакет инженерные коммуникации. Подведение труб горячей и холодной воды, прокладка канализационных труб, водонагреватель. Устройство канализации внутри дома. Прокладка электропроводки в пластиковых коробах.

Заказать дом Смотреть комплектацию
Фундамент дома

Опорные столбы из бетонных блоков высотой 200 мм, на бетонной армированной плитке 400х400х50 мм на песчаной подушке.Гидроизоляция фундамента — рубероид в два слоя. Замкнутая нижняя обвязка толщиной 145 мм ПМК.

Огнебиозащита, антисептирование

нет

Конструкция пола 1-го этажа

Толщина конструкции 168 мм, пароизоляционная мембрана, ПМК, минеральная вата, гидро-ветроизоляционная мембрана, черновой пол толщиной 10 мм.

Утепление пола 1-го этажа

Дополнительное утепление пола 1 этажа до 100 мм минеральной ватой.

Настил пола 1-го этажа

Доска пола 21 мм.

Стены 1-го этажа

Толщина стен 140 мм. Высота потолка (без учета усадки) 2,306 м. Брус строганный профилированный 140х140 мм (финский профиль). Прокладывается межвенцовый уплотнитель, закрепляется между собой деревянными нагелями.

Перекрытие 1-го этажа

Толщина конструкции 180 мм. Доска пола 21 мм, гидро-ветроизоляционная мембрана, ПМК, минеральная вата 50 мм, пароизоляционная мембрана, обшивка 12,5 мм.

Второй этаж

Толщина фронтонов 125 мм. Толщина боковых стен 110 мм. Высота потолка мансарды 2,2 м (при подшивке потолка обшивкой 12,5 мм**, при доске пола 21 мм). Внутренняя обшивка 12,5 мм, ПМК, паро-изоляционная мембрана, минеральная вата 50 мм, гидро-ветроизоляционная мембрана (только фронтоны), наружная обшивка 16 мм (только фронтоны). По фронтонам устанавливаются отливы из оцинкованной листовой стали.

Перегородки 1 этажа

Толщина перегородок 90 мм. Брус строганный профилированный 140х90 мм (финский профиль). Прокладывается межвенцовый уплотнитель, закрепляется между собой деревянными нагелями.

Кровля

Оцинкованный профилированный лист. Крепление кровельными саморезами.

Окна

Деревянные распашные. Остекление двойное. Окна в обсадных коробках.

Двери дома

Двери ПГ в обсадных коробках.

Лестница

Лестница деревянная одномаршевая.

Люкс Из бруса
2 652 000 р.
цена апреля
2 745 000 р.
цена по ипотеке
3 234 000 р.
цена мая
225 398 р.

Пакет инженерные коммуникации. Подведение труб горячей и холодной воды, прокладка канализационных труб, водонагреватель. Устройство канализации внутри дома. Прокладка электропроводки в пластиковых коробах.

Заказать дом Смотреть комплектацию
Фундамент дома

Свайно-винтовой. Гидроизоляция фундамента — рубероид в два слоя. Замкнутая нижняя обвязка толщиной 145 мм ПМК*.

Огнебиозащита, антисептирование

нет

Конструкция пола 1-го этажа

Толщина конструкции 194 мм, пароизоляционная мембрана, клееный тавровый профиль 73х159, гидро-ветроизоляционная мембрана, черновой пол толщиной 10 мм.

Утепление пола 1-го этажа

Минеральная вата 150 мм.

Настил пола 1-го этажа

Доска пола 35 мм.

Стены 1-го этажа

Толщина стен 140 мм. Высота потолка (без учета усадки) 2,306 м. Брус строганный профилированный 140х140 мм (финский профиль). Прокладывается межвенцовый уплотнитель, закрепляется между собой деревянными нагелями.

Перекрытие 1-го этажа

Толщина конструкции 180 мм. Доска пола 21 мм, гидро-ветроизоляционная мембрана, ПМК, минеральная вата 50 мм, пароизоляционная мембрана, обшивка 12,5 мм**.

Второй этаж

Толщина фронтонов 175 мм. Толщина боковых стен 110 мм. Высота потолка мансарды 2,2 м (при подшивке потолка обшивкой 12,5 мм**, при доске пола 21 мм). Внутренняя обшивка 12,5 мм, ПМК*, паро-изоляционная мембрана, минеральная вата 100 мм, гидро-ветроизоляционная мембрана (только фронтоны), наружная обшивка 16 мм (только фронтоны). По фронтонам устанавливаются отливы из оцинкованной листовой стали.

Перегородки 1 этажа

Толщина перегородок 90 мм. Брус строганный профилированный 140х90 мм (финский профиль). Прокладывается межвенцовый уплотнитель, закрепляется между собой деревянными нагелями.

Кровля

Оцинкованный профилированный лист. Крепление кровельными саморезами.

Окна

ПВХ, однокамерный стеклопакет цвет белый. Окна в обсадных коробках.

Двери дома

Двери ПГ в обсадных коробках.

Лестница

Лестница деревянная одномаршевая

В любую комплектацию возможно внести изменения!

Доставка свыше 100 км от производственной базы (Московская область, г. Бронницы, с. Заворово):
дом с блочным фундаментом 338 руб./км
дом со свайно-винтовым фундаментом 422 руб./км
дом с монолитным фундаментом 451 руб./км
Отправить заявку на проект
Комплектация
Не важно
  • Стандарт
  • Люкс
Город*
Выберите город
  • Москва и область
  • Рязань и область
  • Другой
Планировка
Выберите планировку
  • Планировка 1
  • Планировка 2