Дачник 6x9

от 1 190 000р.
  • Общая площадь 81.24 м2
  • Площадь застройки 54 м2
  • Размеры 6х9 м
  • Технология Каркасная Каркасно-щитовая
  • Срок строительства от 5 дней
  • Маткапитал На зимние комплектации и ПМЖ
  • Кредит от 24,9%

В этом комфортном дачном домике с мансардой удастся хорошо отдохнуть летом. Строительство дома площадью 80,95 м² «под ключ» занимает всего от 5 дней. Здесь предусмотрено всё необходимое для жизни. Тамбур-прихожая имеет достаточно пространства для установки шкафа и полок под обувь — 2,9 м². При желании его можно расширить, изменив внутреннюю планировку.

В шикарной 27-метровой кухне-гостиной первого этажа разместится бытовая техника, мягкая мебель и другие предметы интерьера. Примыкающую к гостиной 12,1-метровую комнату хорошо отвести под спальню или рабочий кабинет. Просторный санузел площадью 6,5 м², в котором можно разместить ванну, стиральную машину и всё необходимое для гигиены.

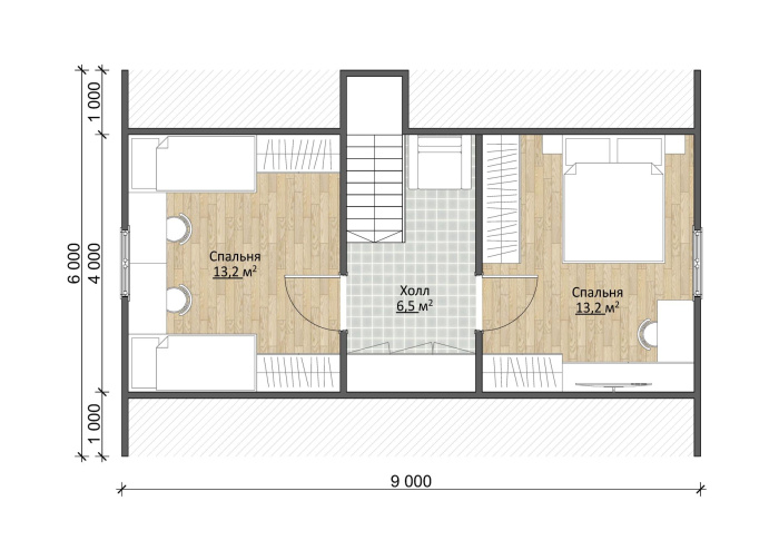
На мансардном этаже расположен 5,6-метровый холл, разделяющий две вместительные комнаты по 13,4 м².

Стены и пол дома можно утеплить дополнительно, подготовив его для эксплуатации в холодное время года. При необходимости — заказать инженерные коммуникации и выбрать окраску, обшивку стен в цветовой гамме по собственному вкусу. Конструкцию самого дома также можно скорректировать. Например, пристроить к нему террасу.

Планировки дома *
Планировка 2 Планировка 1
1-й этаж Планировка 2
2-й этаж Планировка 2
* Размеры и площади указаны без учета наружной и внутренней отделки и в разных комплектациях могут меняться (из-за толщины утеплителя, стен и перегородок). Подробности уточняйте у менеджера.
1-й этаж Планировка 1
2-й этаж Планировка 1
* Размеры и площади указаны без учета наружной и внутренней отделки и в разных комплектациях могут меняться (из-за толщины утеплителя, стен и перегородок). Подробности уточняйте у менеджера.
Комплектации
Лето Каркасно-щитовая
1 190 000 р.
цена апреля
1 254 000 р.
цена мая
1 776 000 р.
цена июня
225 398 р.

Пакет инженерные коммуникации. Подведение труб горячей и холодной воды, прокладка канализационных труб, водонагреватель. Устройство канализации внутри дома. Прокладка электропроводки в пластиковых коробах.

Заказать дом Смотреть комплектацию
Фундамент дома

Опорные столбы из бетонных блоков высотой 200 мм, на бетонной армированной плитке на песчаной подушке. Гидроизоляция фундамента. Опорный брус из ПМК.

Огнебиозащита, антисептирование

нет

Конструкция пола 1-го этажа

Толщина конструкции: 119мм. Настил пола ОСП-22 мм; гидро-ветроизоляционная мембрана Тераспан А(или аналог); п/м.

Утепление пола 1-го этажа

нет

Настил пола 1-го этажа

ОСП 22 мм.

Стены 1-го этажа

Толщина конструкции 115 мм. Высота потолка 2.3 м. (от доски пола до балок перекрытия) внутренняя обшивка ОСП-9 пароизоляционная мембрана, ПМК, гидро-ветроизоляционная мембрана, наружная обшивка ОСП-9.

Перекрытие 1-го этажа

Толщина конструкции: 128мм. Настил пола ОСП-22 мм; п/м; обшивка ОСП-9.

Второй этаж

Толщина фронтонов 93 мм. Толщина боковых стен 84 мм. Высота потолка 2.2. Внутренняя обшивка ОСП-9, ПМК, гидро-ветроизоляционная мембрана, наружная обшивка ОСП-9 (только фронтоны). По фронтонам устанавливаются отливы из оцинкованной стали.

Перегородки 1 этажа

Толщина перегородок 93 мм. Обшивка ОСП-9, ПМК, обшивка ОСП-9.

Кровля

Оцинкованный профилированный лист. Крепление кровельными саморезами.

Окна

Деревянные распашные, с одинарной рамой и одинарным остеклением.

Двери дома

Дверь строительная ПГ. Внутренние ламинированные.

Лестница

Деревянная одномаршевая наборная.

Стены 1 го этажа

-

Вентиляция

-

Электрика

-

Отопление

-

Водоподготовка

-

Канализация

-

Осень Каркасная
1 843 190 р.
цена апреля
1 920 000 р.
цена по ипотеке
2 393 000 р.
цена мая
225 398 р.

Пакет инженерные коммуникации. Подведение труб горячей и холодной воды, прокладка канализационных труб, водонагреватель. Устройство канализации внутри дома. Прокладка электропроводки в пластиковых коробах.

Заказать дом Смотреть комплектацию
Фундамент дома

Опорные столбы из бетонных блоков высотой 200 мм, на бетонной армированной плитке на песчаной подушке. Гидроизоляция фундамента. Замкнутая нижняя обвязка из ПМК.

Огнебиозащита, антисептирование

нет

Конструкция пола 1-го этажа

Толщина конструкции: 181мм. Настил пола ОСП-22 мм; пароизоляция Тераспан Б (или аналог); клееный Т-профиль 73х159 мм усиленной конструкции; минеральная вата Урса М11 (или аналог) 100мм; ветро-изоляционная мембрана Тераспан А (или аналог); черновой пол толщиной 10мм.

Утепление пола 1-го этажа

100 мм минеральной ватой.

Настил пола 1-го этажа

ОСП 22 мм.

Стены 1-го этажа

Толщина стен 195 мм. Высота потолка 2.33 м (от балок пола до балок перекрытия) внутренняя обшивка ГКЛ по разряженной обрешетке из ПМК, пароизоляционная мембрана, ПМК, минеральная вата 150 мм, гидро-ветроизоляционная мембрана, наружная обшивка 12,5мм (вагонка).

Перекрытие 1-го этажа

Толщина конструкции: 216,5 мм. Настил пола ОСП-22 мм; пароизоляция Тераспан Б (или аналог); ПМК(1); Минеральная вата Урса М11(или аналог) 50 мм; пароизоляция Тераспан Б (или аналог); обшивка ГКЛ 12,5 мм по разряженной обрешетке из ПМК(1).

Второй этаж

Толщина фронтонов 145мм. Толщина боковых стен 133 мм. Высота потолка 2.22 (от балок перекрытий до ригеля). Внутренняя обшивка ГКЛ по разряженной обрешетке из ПМК, пароизоляционная мембрана, ПМК, гидро-ветроизоляционная мембрана, наружная обшивка 12,5мм (вагонка только фронтоны). По фронтонам устанавливаются отливы из оцинкованной стали. Утепление второго этажа 50 мм.

Перегородки 1 этажа

Толщина перегородок 169 мм. Обшивка ГКЛ по разряженной обрешетке из ПМК.

Кровля

Оцинкованный профилированный лист. Крепление кровельными саморезами.

Окна

Деревянные распашные, с одинарной рамой и одинарным остеклением.

Двери дома

Входная металлическая. Внутренние ламинированные.

Лестница

Деревянная одномаршевая наборная.

Стены 1 го этажа

-

Вентиляция

-

Электрика

-

Отопление

-

Водоподготовка

-

Канализация

-

Зима Каркасная
2 624 174 р.
цена апреля
2 717 000 р.
цена по ипотеке
3 407 000 р.
цена мая
225 398 р.

Пакет инженерные коммуникации. Подведение труб горячей и холодной воды, прокладка канализационных труб, водонагреватель. Устройство канализации внутри дома. Прокладка электропроводки в пластиковых коробах.

Заказать дом Смотреть комплектацию
Фундамент дома

Свайно-винтовой (сваи D=108 мм, L=2500 мм). Гидроизоляция фундамента - рубероид в два слоя. Замкнутая нижняя обвязка толщиной 145 мм П/м(3) обработана огнебиозащитой. По фундаменту установлены отливы.

Огнебиозащита, антисептирование

Огнебиозащита нижней обвязки, лаг пола и чернового пола в 2 слоя.

Конструкция пола 1-го этажа

Толщина конструкции: 229 мм. Настил пола ОСП-22 мм; пароизоляция Тераспан Б (или аналог); клееный Т-профиль 73х207 мм усиленной конструкции; минеральная вата Урса М11 (или аналог) 200 мм; ветро-изоляционная мембрана Тераспан А (или аналог); черновой пол толщиной 10мм. Балки пола и черновой пол обработаны огнебиозащитой

Утепление пола 1-го этажа

200 мм минеральной ватой.

Настил пола 1-го этажа

ОСП 22 мм.

Стены 1 го этажа

Толщина стен 203,5 мм. Высота потолка 2,533 м. (от настила пола до балок перекрытия). Внутренняя обшивка 12,5 мм(2); пароизоляция Тераспан Б (или аналог); ПМК(1); минеральная вата Урса П15 (или аналог) 150мм; ветро-изоляционная мембрана Тераспан А (или аналог); наружная обшивка сайдинг Альта профиль «Аляска» (цвет Ивори) (стыковка внахлест) по ОСП-9, по вентфасаду ПМК(1)

Перекрытие 1-го этажа

Толщина конструкции: 181,5 мм. Настил пола ОСП-22 мм; пароизоляция Тераспан Б (или аналог); ПМК(1); Минеральная вата Урса М11(или аналог) 50 мм; пароизоляция Тераспан Б (или аналог); обшивка 12,5 мм

Второй этаж

Толщина фронтонов: 203,5 мм. Толщина боковых стен 159,5 мм., Высота потолка 2 433 мм (от настила пола до ригеля). Внутренняя обшивка 12,5 мм; пароизоляция Тераспан Б (или аналог);, ПМК(1); минеральная вата Урса П15, М11 (или аналог) 150мм; потолок второго этажа Урса М11 (или аналог) 200мм; ветро-изоляционная мембрана Тераспан А; наружная обшивка сайдинг Альта профиль «Аляска» (цвет Ивори) (стыковка внахлест) по ОСП-9, по вентфасаду ПМК(1)

Перегородки 1 этажа

Толщина перегородок: 122 мм Обшивка 12.5 мм(2), ПМК(1 обшивка 12.5мм(2)

Кровля

Профилированный лист (цвет коричневый). Крепление кровельными саморезами. по обрешетке П/м(3), вентиляционный зазор ПМК(1), гидро-ветрозащитная мембрана Тераспан АМ (или аналог).

Окна

ПВХ двухкамерный стеклопакет, цвет белый. Под окнами установлены отливы (цвет белый)

Двери дома

Входная металлическая. Внутренние ламинированные.

Лестница

Деревянная одномаршевая наборная, с забежными ступенями (временная

Стены 1-го этажа

-

Вентиляция

-

Электрика

-

Отопление

-

Водоподготовка

-

Канализация

-

ПМЖ Каркасная
3 381 558 р.
цена апреля
3 489 000 р.
цена по ипотеке
4 390 000 р.
цена мая
225 398 р.

Пакет инженерные коммуникации. Подведение труб горячей и холодной воды, прокладка канализационных труб, водонагреватель. Устройство канализации внутри дома. Прокладка электропроводки в пластиковых коробах.

Заказать дом Смотреть комплектацию
Фундамент дома

Свайно-винтовой (сваи D=108 мм, L=2500 мм). Нижняя обвязка - труба профильная металлическая 120х80 мм, гидроизоляция фундамента - рубероид в два слоя, монтажная доска ПМК обработана огнебиозащитой. Отделка фундамента дома ОСП-9 по обрешетке, H=400 мм. По фундаменту установлены отливы (в цвет кровли).

Огнебиозащита, антисептирование

Огнебиозащита нижней обвязки, лаг пола и чернового пола в 2 слоя.

Конструкция пола 1-го этажа

Толщина конструкции: 229мм. Настил пола ОСП-22 мм; пароизоляция Тераспан Б (или аналог); клееный Т-профиль 73х207 мм усиленной конструкции; минеральная вата Урса М11 (или аналог) 200мм; ветро-изоляционная мембрана Тераспан А (или аналог); черновой пол толщиной 10мм. Балки пола и черновой пол обработаны огнебиозащитой.

Утепление пола 1-го этажа

200 мм минеральной ватой.

Настил пола 1-го этажа

ОСП 22 мм.

Стены 1-го этажа

Толщина стен 235 мм. Высота потолка 2.53 м. (от балок пола до балок перекрытия). Внутренняя обшивка 12.5 мм. пароизоляционная мембрана, ПМК, повторитель стоек ПМК для перекрестного утепления, минеральная вата 200 мм, гидро-ветроизоляционная мембрана, наружная обшивка сайдинг Альта профиль «Аляска» (стыковка внахлест) по контр-рейке, по ветрозащите, по ОСП-9.

Перекрытие 1-го этажа

Толщина конструкции: 181,5 мм. Настил пола ОСП-22 мм; пароизоляция Тераспан Б (или аналог); ПМК(1); Минеральная вата Урса М11 (или аналог) 100 мм; пароизоляция Тераспан Б (или аналог); обшивка 12.5мм(2)

Второй этаж

Толщина фронтонов 235 мм. Толщина боковых стен 206 мм, высота потолка 2.433 м. (от балок перекрытий до ригеля), внутренняя обшивка 12.5 мм, пароизоляционная мембрана, ПМК, повторитель стоек ПМК для перекрестного утепления, минеральная вата 200 мм, гидро-ветроизоляционная мембрана, наружная обшивка сайдинг Альта профиль «Аляска» (стыковка внахлест) по контр-рейке, по ветрозащите, по ОСП-9 (только фронтоны).

Перегородки 1 этажа

Толщина перегородок 122 мм. Обшивка 12.5 мм, пароизоляционная мембрана, минеральная вата 100 мм ПМК, обшивка 12.5 мм.

Кровля

Профиль СуперМонтеррей с устройством гидроизоляции подкровельного пространства. Крепление кровельными саморезами.

Окна

ПВХ двухкамерный стеклопакет с москитными сетками. Под окнами устанавливаются отливы (цвет белый).

Двери дома

Входная металлическая. Внутренние ламинированные.

Лестница

Деревянная клееная с балясинами.

Вентиляция

Естественная, с/у и кухни. Место установки изолированного вентиляционного выхода и вентиляционных решеток не регламентируется и определяется проектом.

Стены 1 го этажа

-

Электрика

-

Отопление

-

Водоподготовка

-

Канализация

-

ПМЖ+ Каркасная
4 074 567 р.
цена апреля
4 196 000 р.
цена по ипотеке
5 290 000 р.
цена мая
766 327 р. АКЦИЯ *

Пакет инженерные коммуникации: отопление от электрокотла, горячее и холодное водоснабжение (монтаж внутри дома), канализация на 3-х пользователей, прокладка электропроводки в пластиковых коробах.

Заказать дом Смотреть комплектацию
Фундамент дома

Свайно-винтовой (сваи D=108 мм, L=2500 мм). Нижняя обвязка - труба профильная металлическая 120х80 мм. Гидроизоляция фундамента-рубероид в два слоя, монтажная доска ПМК обработана огнебиозащитой. Отделка фундамента дома ОСП-9 по обрешетке, H=400 мм. По фундаменту установлены отливы (в цвет кровли).

Огнебиозащита, антисептирование

Огнебиозащита нижней обвязки, лаг пола и чернового пола в 2 слоя.

Конструкция пола 1-го этажа

Толщина конструкции: 229мм. Настил пола ОСП-22 мм; пароизоляция Тераспан Б (или аналог); клееный Т-профиль 73х207 мм усиленной конструкции; минеральная вата Урса М11 (или аналог) 200мм; ветро-изоляционная мембрана Тераспан А (или аналог); черновой пол толщиной 10мм. Балки пола и черновой пол обработаны огнебиозащитой.

Утепление пола 1-го этажа

200 мм минеральной ватой.

Настил пола 1-го этажа

ОСП 22 мм.

Стены 1-го этажа

Толщина стен 235 мм. Высота потолка 2.53 м (от балок пола до балок перекрытия), внутренняя обшивка 12.5 мм, пароизоляционная мембрана, ПМК, повторитель стоек ПМК для перекрестного утепления, минеральная вата 200 мм, гидро-ветроизоляционная мембрана, наружная обшивка сайдинг Альта профиль «Аляска» (стыковка внахлест) по контр-рейке, по ветрозащите, по ОСП-9.

Перекрытие 1-го этажа

Толщина конструкции: 181,5 мм. Настил пола ОСП-22 мм; пароизоляция Тераспан Б (или аналог); ПМК(1); Минеральная вата Урса М11 (или аналог) 100 мм; пароизоляция Тераспан Б (или аналог); обшивка 12.5мм(2)

Второй этаж

Толщина фронтонов 235 мм. Толщина боковых стен 206 мм. Высота потолка 2.433 м (от балок перекрытий до ригеля), внутренняя обшивка 12.5 мм, пароизоляционная мембрана, ПМК, повторитель стоек ПМК для перекрестного утепления, минеральная вата 200 мм, гидро-ветроизоляционная мембрана, наружная обшивка сайдинг Альта профиль «Аляска» (стыковка внахлест) по контр-рейке, по ветрозащите, по ОСП-9 (только фронтоны).

Перегородки 1 этажа

Толщина перегородок 122 мм. Обшивка 12.5 мм, пароизоляционная мембрана, минеральная вата 100 мм, ПМК, обшивка 12.5 мм.

Кровля

Профиль СуперМонтеррей с устройством гидроизоляции подкровельного пространства. Крепление кровельными саморезами.

Окна

ПВХ двухкамерный стеклопакет с москитными сетками. Под окнами устанавливаются отливы (цвет белый)

Двери дома

Входная металлическая. Внутренние ламинированные.

Лестница

Деревянная клееная с балясинами.

Вентиляция

Естествення с/у и кухни Место установки изолированного вентиляционного выхода и вентиляционных решеток не регламентируется и определяется проектом.

Электрика

Прокладка электропроводки в пластиковых коробах.

Отопление

Электрическое отопление. Двухтрубная система отопления, алюминиевые радиаторы, запорная арматура, электрический котёл.

Водоподготовка

Разводка по дому горячего и холодного водоснабжения до точки пользования с запорнрй арматурой. Водонагреватель ГВС на 50л.

Канализация

Канализация включает в себя разводку канализационных труб для обеспечения слива воды под каждую точку водоразбора, в том числе под унитаз. Септик. Залповый сброс 150 л. Производительность 0,6 куб. м. в сутки. Количество пользователей — 3 чел. Потребляемая мощность 2 кВт сутки.

Стены 1 го этажа

-

В любую комплектацию возможно внести изменения!

Доставка свыше 100 км от производственной базы (Московская область, г. Бронницы, с. Заворово):
Осень/Зима/ПМЖ
дом с блочным фундаментом 598 руб./км
дом со свайно-винтовым фундаментом 734 руб./км
дом со свайно-забивным (ЖБИ) фундаментом 801 руб./км
Лето
дом с блочным фундаментом 598 руб./км
дом со свайно-винтовым фундаментом 734 руб./км
дом со свайно-забивным (ЖБИ) фундаментом 801 руб./км
Видеообзор
Фотообзор
Фотообзор Дачник 6x9 - 1

Дом для дачи нужен? Тогда Дачник 6х9 подойдет под ваш запрос!

Фотообзор Дачник 6x9 - 2

Гостиная совмещена с кухней. Это очень удобно и функционально.

Фотообзор Дачник 6x9 - 3

Заказчики уже обжили свое семейное гнездышко. Только посмотрите как здесь уютно!

Фотообзор Дачник 6x9 - 4

Спальня в фиолетовых оттенках смотрится потрясающе.

Фотообзор Дачник 6x9 - 5

Еще одна комната для отдыха и проведения свободного времени. 

Фотообзор Дачник 6x9 - 6

И еще одна спальня. Разве сразу угадаешь, что в доме так много комнат?

Отправить заявку на проект
Комплектация
Не важно
  • Лето
  • Осень
  • Зима
  • ПМЖ
  • ПМЖ+
Город*
Выберите город
  • Москва и область
  • Рязань и область
  • Другой
Планировка
Выберите планировку
  • Планировка 2
  • Планировка 1