Фаворит 6х9 Брус

от 2 601 000р.
  • Общая площадь 93.8 м2
  • Площадь застройки 54 м2
  • Размеры 6х9 м
  • Технология Из бруса
  • Срок строительства от 15 дней
  • Маткапитал На зимние комплектации и ПМЖ
  • Кредит от 24,9%

Дачный дом 6х9 из бруса прослужит вам многие годы. Его прочная структура выдерживает любые погодные условия и изменения почвы. А уютное крыльцо-терраса будет излюбленным местом всех членов семьи.

Двускатная кровля дома выглядит легкой и воздушной. Планировок целых пять, и они предусматривают наличие просторной кухни, гостиной, санузла и нескольких спален. Мансардная кровля позволяет сделать на втором этаже 3 полноценных помещения — спальню, детскую или кабинет. Выбирайте одну из двух комплектаций — Стандарт или Люкс. Они отличаюся фундаментом, толщиной утеплителя и окнами.

Вы также можете внести в план проведение инженерных коммуникаций: подведение труб горячей и холодной воды, прокладка канализационных труб, подключение водонагревателя и проведение электроснабжения в пластиковые короба.

Срок строительства дома из бруса — от 15 дней.

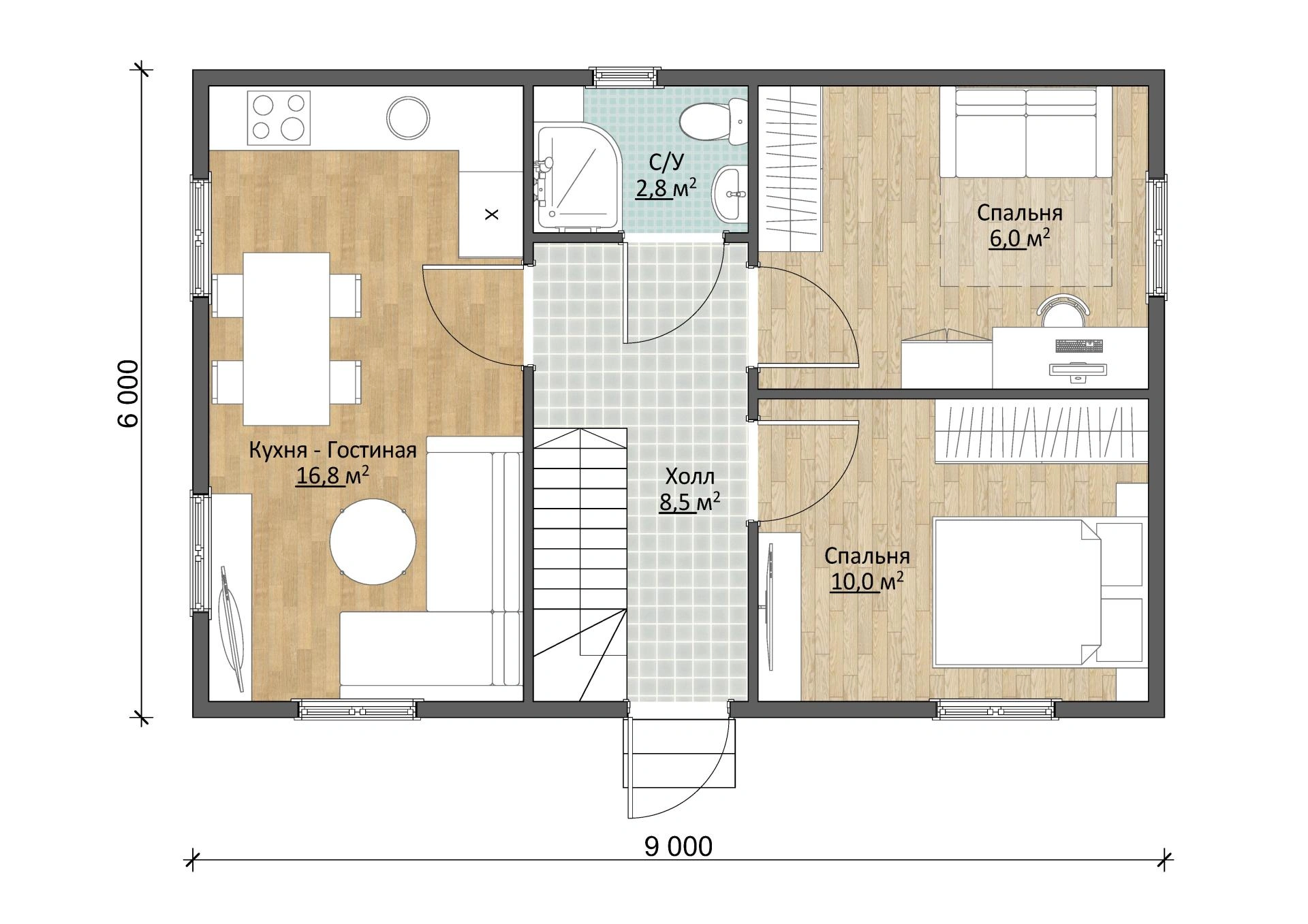
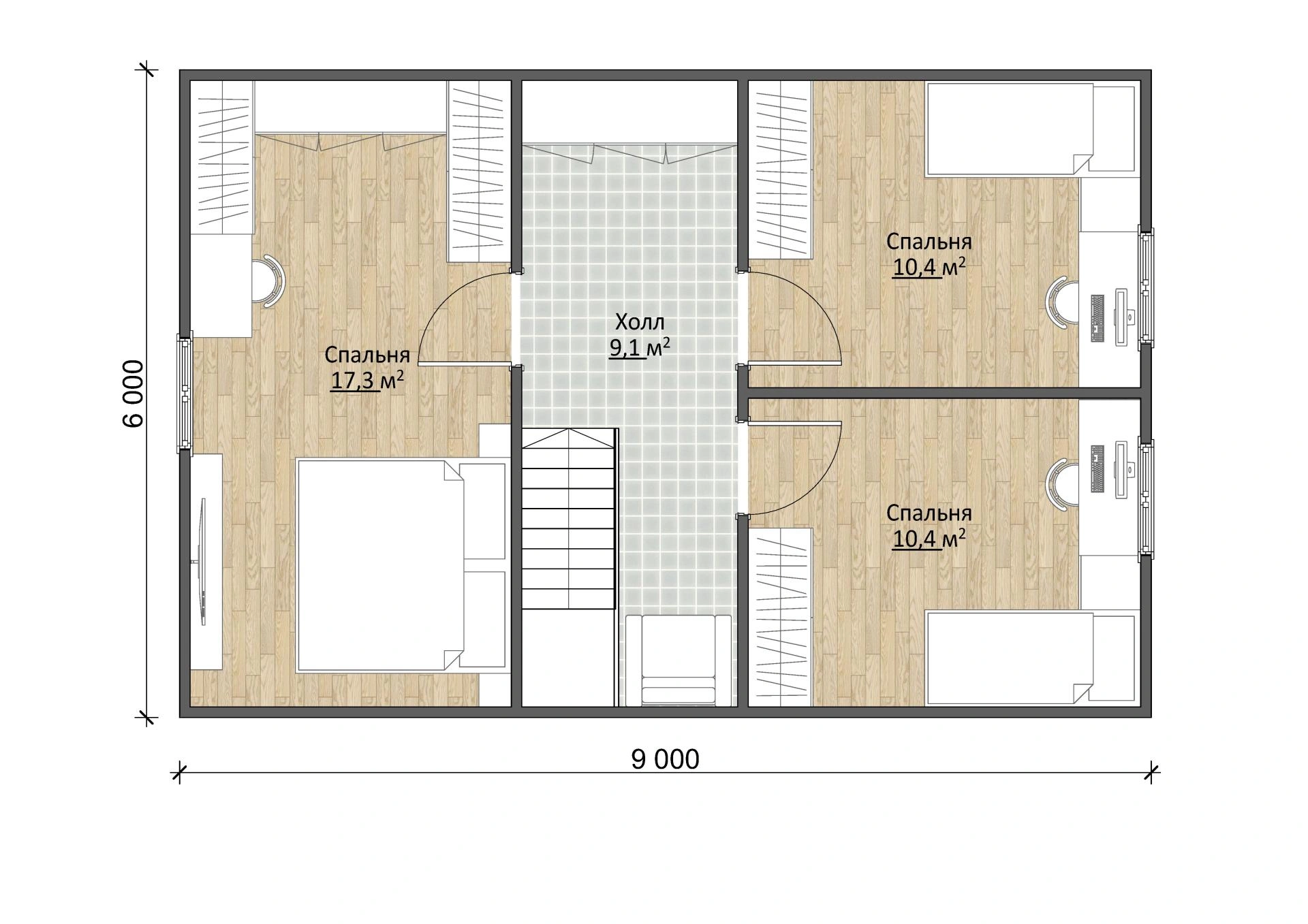
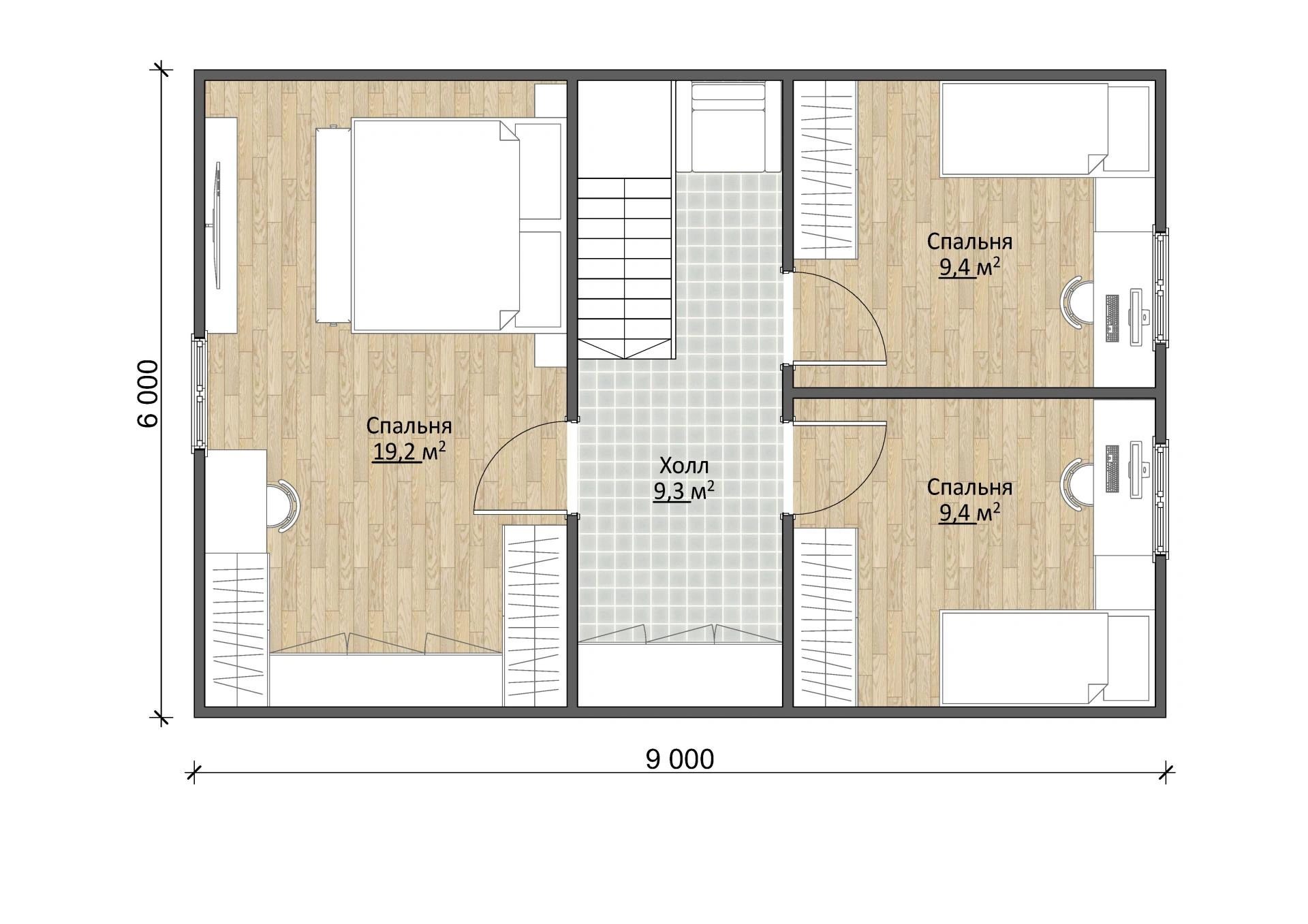
Планировки дома *
Планировка 1 Планировка 2 Планировка 3
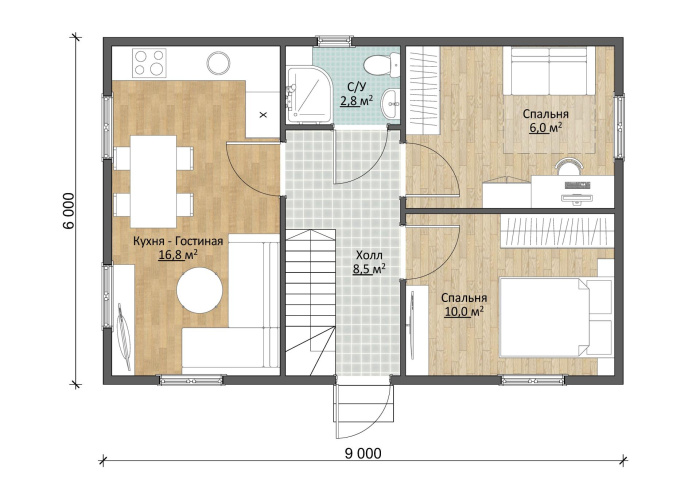
1-й этаж Планировка 1
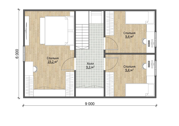
2-й этаж Планировка 1
* Размеры и площади указаны без учета наружной и внутренней отделки и в разных комплектациях могут меняться (из-за толщины утеплителя, стен и перегородок). Подробности уточняйте у менеджера.
1-й этаж Планировка 2
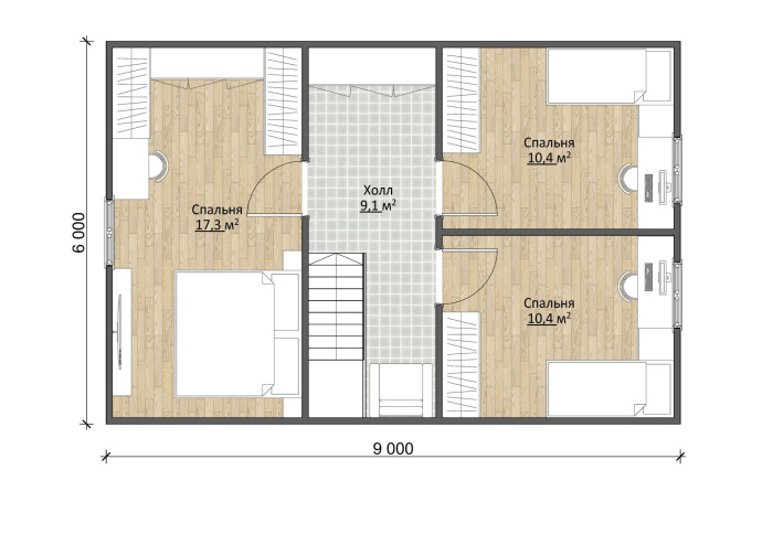
2-й этаж Планировка 2
* Размеры и площади указаны без учета наружной и внутренней отделки и в разных комплектациях могут меняться (из-за толщины утеплителя, стен и перегородок). Подробности уточняйте у менеджера.
1-й этаж Планировка 3
2-й этаж Планировка 3
* Размеры и площади указаны без учета наружной и внутренней отделки и в разных комплектациях могут меняться (из-за толщины утеплителя, стен и перегородок). Подробности уточняйте у менеджера.
Комплектации
Стандарт Из бруса
2 601 000 р.
цена апреля
2 693 000 р.
цена по ипотеке
3 172 000 р.
цена мая
175 238 р.

Пакет инженерные коммуникации. Подведение труб горячей и холодной воды, прокладка канализационных труб, водонагреватель. Устройство канализации внутри дома. Прокладка электропроводки в пластиковых коробах.

Заказать дом Смотреть комплектацию
Фундамент дома

Опорные столбы из бетонных блоков высотой 200 мм, на бетонной армированной плитке 400х400х50 мм на песчаной подушке. Гидроизоляция фундамента — рубероид в два слоя. Замкнутая нижняя обвязка толщиной 145 мм ПМК.

Огнебиозащита, антисептирование

нет

Конструкция пола 1-го этажа

Толщина конструкции 168 мм пароизоляционная мембрана, ПМК, гидро-ветроизоляционная мембрана, черновой пол толщиной 10 мм.

Утепление пола 1-го этажа

Минеральная вата 100 мм.

Настил пола 1-го этажа

Доска пола 21 мм.

Стены

Толщина стен 140 мм. Высота потолка (без учета усадки) 2,567 м. Брус строганный профилированный 140х140 мм (финский профиль). Прокладывается межвенцовый уплотнитель, закрепляется между собой деревянными нагелями.

Перекрытие 1-го этажа

Толщина конструкции 180 мм. Доска пола 21 мм, гидро-ветроизоляционная мембрана, ПМК, минеральная вата 50 мм, пароизоляционная мембрана, обшивка 12,5 мм.

Второй этаж

Толщина стен 122 мм., Высота потолка 2.40 м. (при подшивке потолка обшивкой 12,5 мм**, при доске пола 21 мм). Отделка внутри – обшивка 12 мм.; пароизоляционная мембрана Тераспан Б (или аналог); ПМК; минеральная вата Урса П15 и М11(или аналог) 50 мм; гидро-ветроизоляционная мембрана Тераспан А (или аналог); наружная обшивка 16 мм.

Перегородки 1 этажа

Толщина перегородок 90 мм. Брус строганный профилированный 140х90 мм (финский профиль). Прокладывается межвенцовый уплотнитель, закрепляется между собой деревянными нагелями.

Кровля

Оцинкованный профилированный лист. Крепление кровельными саморезами.

Окна

Деревянные распашные. Остекление двойное. Окна в обсадных коробках.

Двери дома

Двери ПГ в обсадных коробках.

Лестница

Лестница деревянная одномаршевая.

Люкс Из бруса
2 968 000 р.
цена апреля
3 067 000 р.
цена по ипотеке
3 620 000 р.
цена мая
175 238 р.

Пакет инженерные коммуникации. Подведение труб горячей и холодной воды, прокладка канализационных труб, водонагреватель. Устройство канализации внутри дома. Прокладка электропроводки в пластиковых коробах.

Заказать дом Смотреть комплектацию
Фундамент дома

Свайно-винтовой (сваи D=108 м, L=2500 мм) в подарок. Гидроизоляция фундамента. Замкнутая нижняя обвязка из ПМК.

Огнебиозащита, антисептирование

нет

Конструкция пола 1-го этажа

Толщина конструкции 194 мм, пароизоляционная мембрана, клееный тавровый профиль 73х159, гидро-ветроизоляционная мембрана, черновой пол толщиной 10 мм.

Утепление пола 1-го этажа

Минеральная вата 150 мм.

Настил пола 1-го этажа

Доска пола 35 мм.

Стены

Толщина стен 140 мм. Высота потолка (без учета усадки) 2,567 м. Брус строганный профилированный 140х140 мм (финский профиль). Прокладывается межвенцовый уплотнитель, закрепляется между собой деревянными нагелями.

Перекрытие 1-го этажа

Толщина конструкции 180 мм. Доска пола 21 мм, гидро-ветроизоляционная мембрана, ПМК, минеральная вата 50 мм, пароизоляционная мембрана, обшивка 12,5 мм.

Второй этаж

Толщина стен 175 мм., Высота потолка 2.4 (при подшивке потолка обшивкой 12,5 мм**, при доске пола 21 мм). Внутренняя обшивка 12,5 мм; ПМК*; паро-изоляционная мембрана Тераспан Б (или аналог); ; минеральная вата Урса П15 и М11 (или аналог)100 мм.; гидро-ветроизоляционная мембрана Тераспан А (или аналог); наружная обшивка 16 мм.

Перегородки 1 этажа

Толщина перегородок 90 мм. Брус строганный профилированный 140х90 мм (финский профиль). Прокладывается межвенцовый уплотнитель, закрепляется между собой деревянными нагелями.

Кровля

Оцинкованный профилированный лист. Крепление кровельными саморезами. Обрешетка 22мм

Окна

ПВХ, однокамерный стеклопакет цвет белый. Окна в обсадных коробках.

Двери дома

Двери ПГ в обсадных коробках.

Лестница

Лестница деревянная одномаршевая

В любую комплектацию возможно внести изменения!

Доставка свыше 100 км от производственной базы (Московская область, г. Бронницы, с. Заворово):
дом с блочным фундаментом 735 руб./км
дом со свайно-винтовым фундаментом 871 руб./км
Дом со свайно-забивным (ЖБИ) фундаментом 915 руб./км
Видеообзор
Отправить заявку на проект
Комплектация
Не важно
  • Стандарт
  • Люкс
Город*
Выберите город
  • Москва и область
  • Рязань и область
  • Другой
Планировка
Выберите планировку
  • Планировка 1
  • Планировка 2
  • Планировка 3