Фаворит 6х9 П135

от 2 327 450р.
  • Общая площадь 94.2 м2
  • Площадь застройки 54 м2
  • Размеры 6х9 м
  • Технология Каркасная
  • Срок строительства от 15 дней
  • Маткапитал На зимние комплектации и ПМЖ
  • Кредит от 24,9%

Комфортабельный загородный дом в полтора этажа, общей площадью 94,2 м², с прекрасной планировкой: четыре спальни, терраса, два санузла и просторная кухня-гостиная. Вариантов комплектации в проекте несколько и в любой можно внести изменения. Срок возведения под ключ — от 15 дней.

На первом этаже расположены удобная прихожая и гардеробная. Просторный 7,6-метровый холл открывает вход в большую 18,9-метровую кухню, совмещенную с гостиной – мечта хозяйки! Изолированная комната площадью 8,9 м² будет удобной спальней или кабинетом.

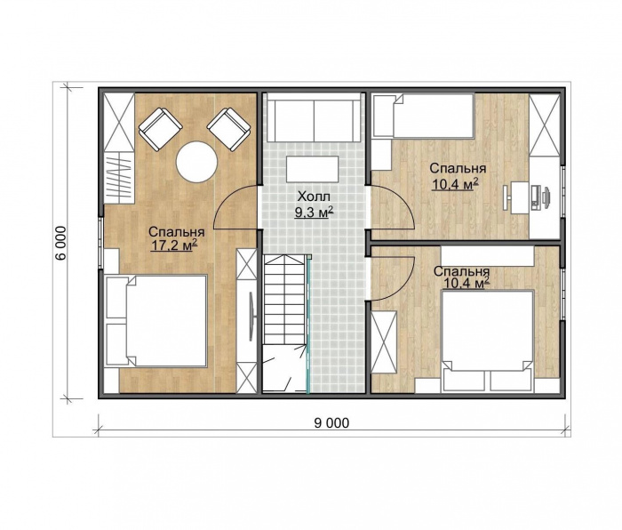
Наверху еще одна просторная комната в 19,5 м² и две поменьше — площадью в 9,6 м². На этаже имеется отдельный холл и еще одна ванная комната.

Не забывайте про дополнительные услуги. Например, фасады дома можно обшить сайдингом, заказать покраску помещений в желаемой цветовой гамме или выбрать свайно-винтовой фундамент. А также благоустроить жилье, проведя инженерные коммуникации. Менеджер в зависимости от ваших пожеланий предложит оптимальную комплектацию проекта и набор дополнительных опций.

Планировки дома *
Планировка 5 Планировка 1 Планировка 3
1-й этаж Планировка 5
2-й этаж Планировка 5
* Размеры и площади указаны без учета наружной и внутренней отделки и в разных комплектациях могут меняться (из-за толщины утеплителя, стен и перегородок). Подробности уточняйте у менеджера.
1-й этаж Планировка 1
2-й этаж Планировка 1
* Размеры и площади указаны без учета наружной и внутренней отделки и в разных комплектациях могут меняться (из-за толщины утеплителя, стен и перегородок). Подробности уточняйте у менеджера.
1-й этаж Планировка 3
2-й этаж Планировка 3
* Размеры и площади указаны без учета наружной и внутренней отделки и в разных комплектациях могут меняться (из-за толщины утеплителя, стен и перегородок). Подробности уточняйте у менеджера.
Комплектации
Осень Каркасная
2 327 450 р.
цена апреля
2 414 000 р.
цена по ипотеке
2 792 000 р.
цена мая
249 672 р.

Пакет инженерные коммуникации. Подведение труб горячей и холодной воды, прокладка канализационных труб, водонагреватель. Устройство канализации внутри дома. Прокладка электропроводки в пластиковых коробах.

Заказать дом Смотреть комплектацию
Фундамент дома

Опорные столбы из бетонных блоков высотой 200 мм, на бетонной армированной плитке на песчаной подушке. Гидроизоляция фундамента. Замкнутая нижняя обвязка из ПМК.

Огнебиозащита, антисептирование

нет

Конструкция пола 1-го этажа

Толщина конструкции: 181мм. Настил пола ОСП-22 мм; пароизоляция Тераспан Б (или аналог); клееный Т-профиль 73х159 мм усиленной конструкции; минеральная вата Урса М11 (или аналог) 100мм; ветро-изоляционная мембрана Тераспан А (или аналог); черновой пол толщиной 10мм.

Утепление пола 1-го этажа

100 мм минеральной ватой.

Настил пола 1-го этажа

ОСП 22 мм.

Стены 1 го этажа

Толщина стен 195 мм. Высота потолка 2.53 м (от балок пола до балок перекрытия). Внутренняя обшивка ГКЛ по разряженной обрешетке из ПМК, пароизоляционная мембрана, ПМК, минеральная вата 150 мм, гидро-ветроизоляционная мембрана, наружная обшивка 12.5 мм (вагонка).

Перекрытие 1-го этажа

Толщина конструкции: 216,5 мм. Настил пола ОСП-22 мм; пароизоляция Тераспан Б (или аналог); ПМК(1); Минеральная вата Урса М11 (или аналог) 50 мм; пароизоляция Тераспан Б (или аналог); обшивка ГКЛ 12,5 мм по разряженной обрешетке из ПМК(1).

Второй этаж

Толщина стен 145 мм. Высота потолка 2.43 (от балок перекрытий до ригеля). Внутренняя обшивка ГКЛ по разряженной обрешетке из ПМК, пароизоляционная мембрана, ПМК, минеральная вата 50 мм, гидро-ветроизоляционная мембрана, наружная обшивка 12.5 мм (вагонка).

Перегородки

Толщина перегородок 169 мм. Обшивка ГКЛ по разряженной обрешетке из ПМК.

Кровля

Оцинкованный профилированный лист. Крепление кровельными саморезами.

Окна

Деревянные распашные, с одинарной рамой и одинарным остеклением.

Двери дома

Дверь строительная ПГ.

Лестница

Деревянная одномаршевая наборная.

Перекрытия 1-го этажа

-

Вентиляция

-

Электрика

-

Отопление

-

Водоподготовка

-

Канализация

-

Зима Каркасная
3 137 785 р.
цена апреля
3 241 000 р.
цена по ипотеке
3 765 000 р.
цена мая
249 672 р.

Пакет инженерные коммуникации. Подведение труб горячей и холодной воды, прокладка канализационных труб, водонагреватель. Устройство канализации внутри дома. Прокладка электропроводки в пластиковых коробах.

Заказать дом Смотреть комплектацию
Фундамент дома

Свайно-винтовой (сваи D=108 мм, L=2500 мм). Гидроизоляция фундамента - рубероид в два слоя. Замкнутая нижняя обвязка толщиной 145 мм П/м(3) обработана огнебиозащитой. . По фундаменту установлены отливы

Огнебиозащита, антисептирование

Огнебиозащита нижней обвязки, лаг пола и чернового пола в 2 слоя.

Конструкция пола 1-го этажа

Толщина конструкции: 229 мм. Настил пола ОСП-22 мм; пароизоляция Тераспан Б (или аналог); клееный Т-профиль 73х207 мм усиленной конструкции; минеральная вата Урса М11 (или аналог) 200 мм; ветро-изоляционная мембрана Тераспан А (или аналог); черновой пол толщиной 10мм. Балки пола и черновой пол обработаны огнебиозащитой.

Утепление пола 1-го этажа

200 мм минеральной ватой.

Настил пола 1-го этажа

ОСП 22 мм.

Стены 1 го этажа

Толщина стен 203,5 мм. Высота потолка 2,533 м. (от настила пола до балок перекрытия). Внутренняя обшивка 12,5 мм(2); пароизоляция Тераспан Б (или аналог); ПМК(1); минеральная вата Урса П15 (или аналог) 150мм; ветро-изоляционная мембрана Тераспан А (или аналог); наружная обшивка сайдинг Альта профиль «Аляска» (цвет Ивори) (стыковка внахлест) по ОСП-9, по вентфасаду ПМК(1)

Перекрытия 1-го этажа

Толщина конструкции: 181,5 мм. Настил пола ОСП-22 мм; пароизоляция Тераспан Б (или аналог); ПМК(1); Минеральная вата Урса М11(или аналог) 50 мм; пароизоляция Тераспан Б (или аналог); обшивка 12,5 мм

Второй этаж

Толщина стен 203,5 мм. Высота потолка 2433 м. (от настила пола до балок перекрытия) внутренняя обшивка 12,5 мм; пароизоляция Тераспан Б(или аналог); ПМК(1); минеральная вата Урса П15, Урса М11 (или аналог) 150мм; потолок полуторного этажа Урса М11 (или аналог) 200мм; ветро-изоляционная мембрана Тераспан А (или аналог); наружная обшивка сайдинг Альта профиль «Аляска» (цвет Ивори) (стыковка внахлест) по ОСП-9, по вентфасаду ПМК(1)

Перегородки

Толщина перегородок: 122мм Обшивка 12.5 мм(2), ПМК(1 обшивка 12.5мм(2)

Кровля

Профилированный лист (цвет коричневый). Крепление кровельными саморезами. по обрешетке П/м(3), вентиляционный зазор ПМК(1), гидро-ветрозащитная мембрана Тераспан АМ (или аналог).

Окна

ПВХ двухкамерный стеклопакет, цвет белый. Под окнами установлены отливы (цвет белый)

Двери дома

Входная металлическая. Внутренние ламинированные.

Лестница

Деревянная одномаршевая наборная, с забежными ступенями (временная).

Перекрытие 1-го этажа

-

Вентиляция

-

Электрика

-

Отопление

-

Водоподготовка

-

Канализация

-

ПМЖ Каркасная
3 872 211 р.
цена апреля
3 990 000 р.
цена по ипотеке
4 646 000 р.
цена мая
249 672 р.

Пакет инженерные коммуникации. Подведение труб горячей и холодной воды, прокладка канализационных труб, водонагреватель. Устройство канализации внутри дома. Прокладка электропроводки в пластиковых коробах.

Заказать дом Смотреть комплектацию
Фундамент дома

Свайно-винтовой (сваи D=108 мм, L=2500 мм). Нижняя обвязка- труба профильная металлическая 120х80 мм. Гидроизоляция фундамента-рубероид в два слоя, монтажная доска ПМК обработана огнебиозащитой. Отделка фундамента дома ОСП-9 по обрешетке, H=400 мм. По фундаменту установлены отливы (в цвет кровли).

Огнебиозащита, антисептирование

Огнебиозащита нижней обвязки, лаг пола и чернового пола в 2 слоя.

Конструкция пола 1-го этажа

Толщина конструкции: 229мм. Настил пола ОСП-22 мм; пароизоляция Тераспан Б (или аналог); клееный Т-профиль 73х207 мм усиленной конструкции; минеральная вата Урса М11 (или аналог) 200мм; ветро-изоляционная мембрана Тераспан А (или аналог); черновой пол толщиной 10мм. Балки пола и черновой пол обработаны огнебиозащитой.

Утепление пола 1-го этажа

200 мм минеральной ватой.

Настил пола 1-го этажа

ОСП 22 мм.

Стены 1 го этажа

Толщина стен 235 мм. Высота потолка 2.53 м. (от балок пола до балок перекрытия). Внутренняя обшивка 12.5 мм, пароизоляционная мембрана, ПМК, повторитель стоек ПМК для перекрестного утепления, минеральная вата 200 мм, гидро-ветроизоляционная мембрана, наружная обшивка сайдинг Альта профиль «Аляска» (стыковка внахлест) по контр-рейке, по ветрозащите, по ОСП-9.

Перекрытие 1-го этажа

Толщина конструкции: 181,5 мм. Настил пола ОСП-22 мм; пароизоляция Тераспан Б (или аналог); ПМК(1); Минеральная вата Урса М11 (или аналог) 100 мм; пароизоляция Тераспан Б (или аналог); обшивка 12.5мм(2)

Второй этаж

Толщина стен 235 мм. Высота потолка 2.43 м. (от балок пола до балок перекрытия). Внутренняя обшивка 12.5 мм, пароизоляционная мембрана, ПМК, повторитель стоек ПМК для перекрестного утепления, минеральная вата 200 мм, гидро-ветроизоляционная мембрана, наружная обшивка сайдинг Альта профиль «Аляска» (стыковка внахлест) по контр-рейке, по ветрозащите, по ОСП-9.

Перегородки

Толщина перегородок 122 мм. Обшивка 12.5мм, пароизоляционная мембрана, минеральная вата 100 мм ПМК, обшивка 12.5 мм.

Кровля

Профиль СуперМонтеррей с устройством гидроизоляции подкровельного пространства. Крепление кровельными саморезами.

Окна

ПВХ двухкамерный стеклопакет с москитными сетками. Под окнами устанавливаются отливы (цвет белый).

Двери дома

Входная металлическая. Внутренние ламинированные.

Лестница

Деревянная клееная с балясинами.

Вентиляция

Естественная, с/у и кухни. Место установки изолированного вентиляционного выхода и вентиляционных решеток не регламентируется и определяется проектом.

Перекрытия 1-го этажа

-

Электрика

-

Отопление

-

Водоподготовка

-

Канализация

-

ПМЖ+ Каркасная
4 590 978 р.
цена апреля
4 723 000 р.
цена по ипотеке
5 508 000 р.
цена мая
805 360 р. АКЦИЯ *

Пакет инженерные коммуникации: отопление от электрокотла, горячее и холодное водоснабжение (монтаж внутри дома), канализация на 3-х пользователей, прокладка электропроводки в пластиковых коробах.

Заказать дом Смотреть комплектацию
Фундамент дома

Свайно-винтовой (сваи D=108 мм, L=2500 мм). Нижняя обвязка - труба профильная металлическая 120х80 мм. Гидроизоляция фундамента-рубероид в два слоя, монтажная доска ПМК обработана огнебиозащитой. Отделка фундамента дома ОСП-9 по обрешетке, H=400 мм. По фундаменту установлены отливы (в цвет кровли).

Огнебиозащита, антисептирование

Огнебиозащита нижней обвязки, лаг пола и чернового пола в 2 слоя.

Конструкция пола 1-го этажа

Толщина конструкции: 229мм. Настил пола ОСП-22 мм; пароизоляция Тераспан Б (или аналог); клееный Т-профиль 73х207 мм усиленной конструкции; минеральная вата Урса М11 (или аналог) 200мм; ветро-изоляционная мембрана Тераспан А (или аналог); черновой пол толщиной 10мм. Балки пола и черновой пол обработаны огнебиозащитой.

Утепление пола 1-го этажа

200 мм минеральной ватой

Настил пола 1-го этажа

ОСП 22 мм.

Стены 1 го этажа

Толщина стен 235 мм. Высота потолка 2.53 м. (от балок пола до балок перекрытия). Внутренняя обшивка 12.5 мм, пароизоляционная мембрана, ПМК, повторитель стоек ПМК для перекрестного утепления, минеральная вата 200 мм, гидро-ветроизоляционная мембрана, наружная обшивка сайдинг Альта профиль «Аляска» (стыковка внахлест) по контр-рейке, по ветрозащите, по ОСП-9.

Перекрытие 1-го этажа

Толщина конструкции: 181,5 мм. Настил пола ОСП-22 мм; пароизоляция Тераспан Б (или аналог); ПМК(1); Минеральная вата Урса М11 (или аналог) 100 мм; пароизоляция Тераспан Б (или аналог); обшивка 12.5мм(2)

Второй этаж

Толщина стен 235 мм. Высота потолка 2.43 м. (от балок пола до балок перекрытия). Внутренняя обшивка 12.5 мм, пароизоляционная мембрана, ПМК, повторитель стоек ПМК для перекрестного утепления, минеральная вата 200 мм, гидро-ветроизоляционная мембрана; наружная обшивка сайдинг Альта профиль «Аляска» (стыковка внахлест) по контр-рейке, по ветрозащите, по ОСП-9.

Перегородки

Толщина перегородок 122 мм. Обшивка 12.5 мм, пароизоляционная мембрана, минеральная вата 100 мм ПМК, обшивка 12.5 мм.

Кровля

Профиль СуперМонтеррей с устройством гидроизоляции подкровельного пространства. Крепление кровельными саморезами.

Окна

ПВХ двухкамерный стеклопакет с москитными сетками. Под окнами устанавливаются отливы (цвет белый).

Двери дома

Входная металлическая. Внутренние ламинированные.

Лестница

Деревянная клееная с балясинами.

Вентиляция

(естественная) с/у и кухни Место установки изолированного вентиляционного выхода и вентиляционных решеток не регламентируется и определяется проектом

Электрика

Прокладка электропроводки в пластиковых коробах.

Отопление

Электрическое отопление. Двухтрубная система отопления, алюминиевые радиаторы, запорная арматура, электрический котёл.

Водоподготовка

Разводка по дому горячего и холодного водоснабжения до точки пользования с запорной арматурой. Водонагреватель ГВС на 50л.

Канализация

Канализация включает в себя разводку канализационных труб для обеспечения слива воды под каждую точку водоразбора, в том числе под унитаз. Септик. Залповый сброс 150 л. Производительность 0,6 куб. м. в сутки. Количество пользователей — 3 чел. Потребляемая мощность 2 кВт сутки.

Перекрытия 1-го этажа

-

В любую комплектацию возможно внести изменения!

Доставка свыше 100 км от производственной базы (Московская область, г. Бронницы, с. Заворово):
дом с блочным фундаментом 801 руб./км
дом со свайно-винтовым фундаментом 937 руб./км
Дом со свайно-забивным (ЖБИ) фундаментом 1003 руб./км
Видеообзор
Фотообзор
Фотообзор Фаворит 6х9 П135 - 1

Уютный домик с увеличенной террасой. Райское место для летних посиделок!

Фотообзор Фаворит 6х9 П135 - 2

Фасад оформлен в белом цвете. Вы можете выбрать любое оформление. 

Фотообзор Фаворит 6х9 П135 - 3

Рамы у окон ПВХ выполнены в коричневом цвете. Выглядит интересно и необычно. 

Фотообзор Фаворит 6х9 П135 - 4

Лестница также стилизована под общий стиль дома. 

Фотообзор Фаворит 6х9 П135 - 5

На мансарде комнаты выглядят уютнее всего из-за скошенных потолков. Так и хочется устроить вечерний марафон по просмотру фильмов!

Отправить заявку на проект
Комплектация
Не важно
  • Осень
  • Зима
  • ПМЖ
  • ПМЖ+
Город*
Выберите город
  • Москва и область
  • Рязань и область
  • Другой
Планировка
Выберите планировку
  • Планировка 5
  • Планировка 1
  • Планировка 3